Square Footage
Under 3000ft²
Residential Type
New Homes
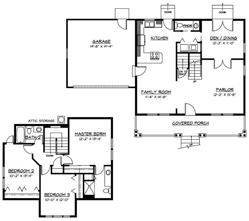
This unique home has 3-bedrooms, 2 ½-bathrooms and 1,997 sq. ft. Features include real black oak flooring throughout the downstairs, decorative glass fixtures, an open floor plan and vaulted ceilings. Not included in the lot size is a shared, hand-laid paver driveway. The home is well-insulated and extremely energy efficient, complete with 90% efficiency furnace with air conditioning. Other features include stainless steel appliances, a bonus room, a two-car garage, and granite countertops in the kitchen. The home is on a 4,799 sq. ft. lot.



